top of page
EDGE HILL
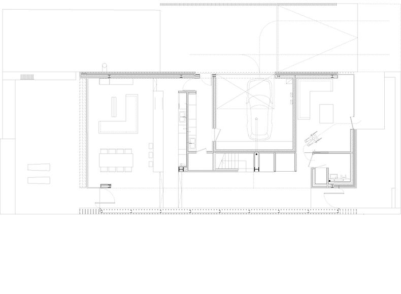
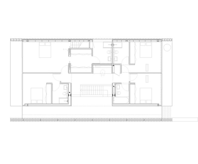
The proposal aims to enhance the natural landscape and aesthetic of Darras Hall by using a timber screen, not only as a privacy device, but also borrowing the natural rhythm and material of the surrounding woodland. The form is simple; a rectilinear body of reconstituted stone with a pitched roof of copper that sits above it. The main body of the structure then appears to be draped with the high quality hardwood screen.

bottom of page










